聯系我們
18903178757
- 地址:
- 河北省泊頭市富鎮開發區
- 傳真:
- 0317-8041117
- Q Q:
- 28505225
LCDMCC型倉頂脈沖袋式除塵器
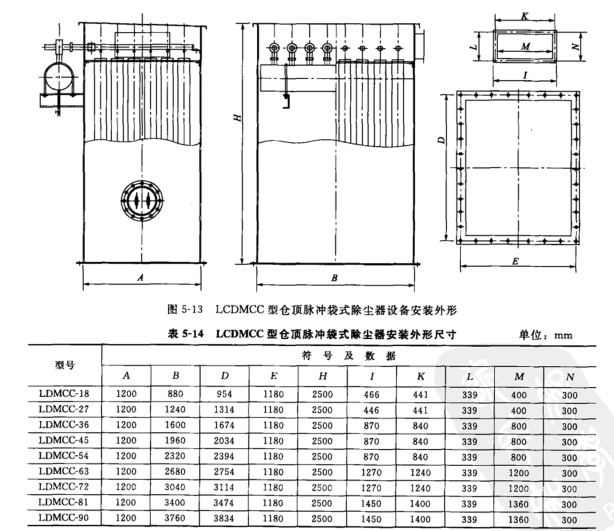
LCDMCC型倉頂脈沖袋式除塵器,按倉頂工作要求簡化了結構,具有氣體處理量大,凈 化效果好,性能穩定運行可靠的特點。適宜布置在各種粉料儲庫的頂部,用于捕集各種細小干 燥的非纖維粉塵。是筒庫除塵的常用設備。它由以下幾個部分組成:①上箱體,包括蓋板、排 氣口等;②下箱體,包括機架、濾袋組件等;③清灰系統,包括電磁脈沖閥、脈沖發生器等。
其工作原理是含塵空氣由除塵器底下進人除塵箱體中,顆粒較粗的粉塵靠其自身重力向下 沉降,落人灰倉,細小粉塵被吸附在濾袋外表面,經濾袋過濾后的凈化空氣進人上箱體從出氣 口排出,被吸附在濾袋外表面的粉塵,隨者時間的增長,越積越厚,除塵器阻力逐漸上升,處 理的氣體量不斷減少。為了使除塵器經常保持有效的工作狀態,使壓力損失保持在一定的范圍 內,控制儀按規定要求對各個電磁脈沖閥發出指令,依次打開閥門,順序向各組濾袋內噴吹高 壓空氣,將吸附在濾袋外面的粉塵清除下來。LCDMCC型倉頂脈沖袋式除塵器的主要技術參數見表5-13。LCDMCC型倉頂脈沖袋式除塵器設備安裝外形見圖5-13。LCDMCC型倉頂脈沖 袋式除塵器安裝外形尺寸見表5-14。
?


LCDMCC防爆型倉頂脈沖袋式除塵器安裝外形尺寸與LCDMCC型相同,區別在于中箱體上加裝防爆門、脈沖電磁閥采用防爆型、濾袋采用防靜電型。

上一篇:料倉泄壓脈沖袋式除塵器
下一篇:DMCC型倉頂脈沖袋式除塵器

